0545-71-2680

周知の通りプラスチックが燃焼した際に発生する発癌性物質(ダイオキシン類)が大きな社会問題となってます。また、埋め立て用資材にしてもそのままでは利用できず、細かく裁断するなどの処理が必要でした。
そこで当社が開発した『クラッシングマシン』は、ビニールをはじめとするプラスチックのシートフィルム塩ビ、アルミ缶、ペットボトルを安価でかつ、簡単 に処理し再利用を可能にした装置です。廃棄物を細かい粒状、あるいは、フレーク状に造粒(粉砕)する為、再利用適合性を向上させることができます。
この方法は、他の処理法に比較し、イニシャルコスト・ランニングコストとも極めて小さく省略化、省スペース化を実現した画期的な装置です。
梱包用
ビニールシート
使用品
農耕用ハウス
ビニールシート
泥汚れ用
ゴムシート粉砕品
アルミ粉砕品
医療用蒸留水ボトル
粉砕処理中
医療用蒸留水ボトル
クラッシングマシンで処理された材料は細粒化されますので、次の活用法が考えられます。
投入する処理物の大きさに大小の規約はありませんが、異物・異材・熱い物・塊まった物は、前粉砕処理し適当な大きさにしてください。
搬送用のコンベアやスクリーンを併設する場合は、受電容量が大きくなります。
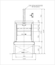
| 機械名 | CM-500 | CM-700 | CM-800 |
|---|---|---|---|
| 電動機容量 | 22kw | 22kw | 55kw |
| 全長 | 1491mm | 1790mm | 1835mm |
| 全高 | 1227mm | 1850mm | 2300mm |
| 全幅 | 660mm | 1787mm | 1880mm |
| 外径 | 558.8mm | 776.4mm | 950mm |
| 内径 | 508mm | 700mm | 800mm |
| 回転刃物数 | 2枚 | 2枚 | 2枚 |
| 固定刃物数 | 6枚 | 8枚 | 8枚 |
| 回転数 | 1440rpm(50Hz) | 921rpm(50Hz) | 1018rpm(50Hz) |
| 処理能力(フィルム) | 500kg/8H | 1t/8H | 1.5~2t/8H |
| 機械重量 | 約1t | 約2t | 約2.5t |
| 据付面積 | 1645×660m/m | 2500×1800m/m | 2525×1860m/m |